Forme
Architecture
+ Urbanisme
Logements collectifs, Angers [ + ]

Logements collectifs, Angers [ - ]

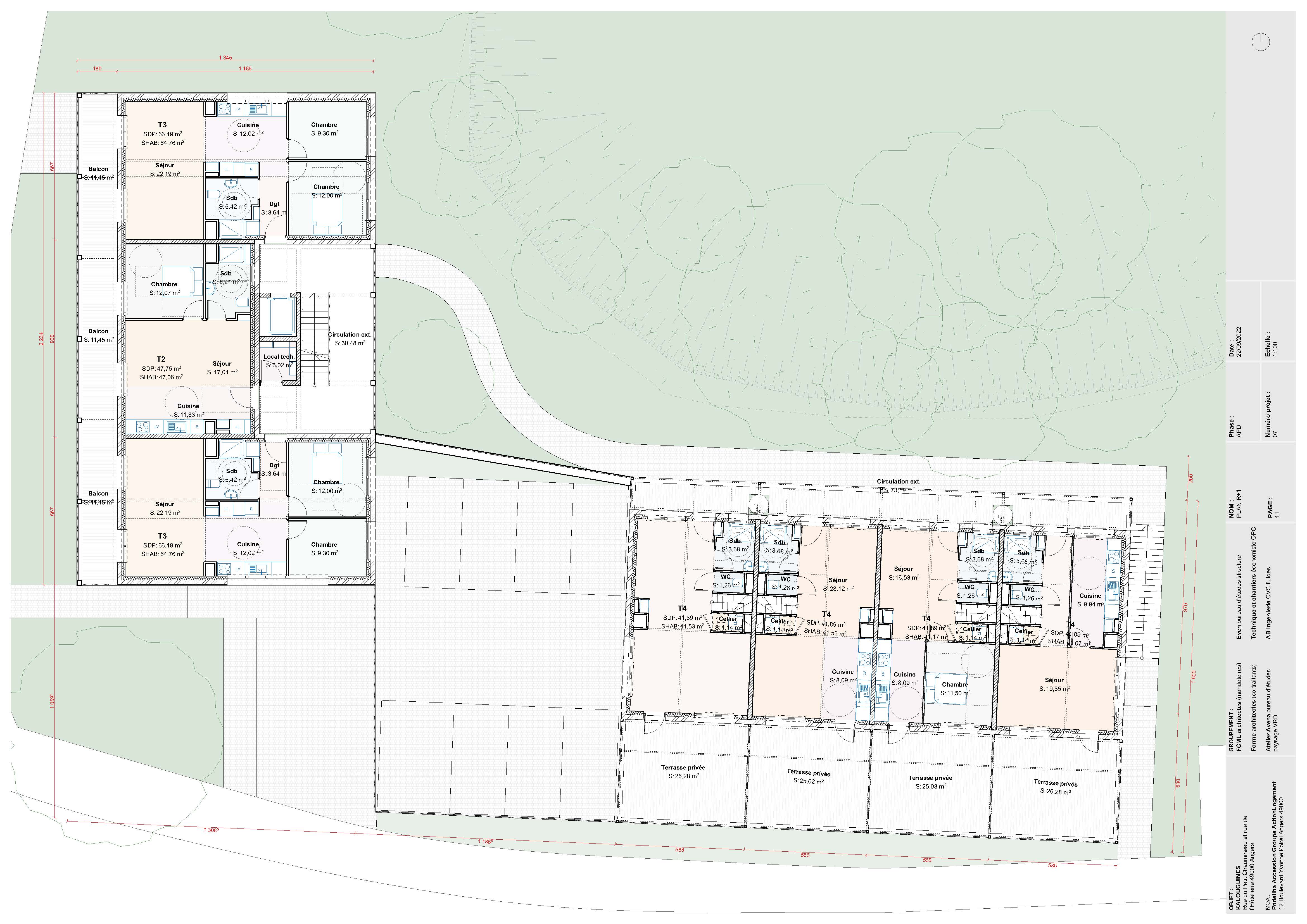
Les Kalouguines, 22 logements en construction bois
Habitat collectif et intermédiaire

Maîtrise d’ouvrage : Podeliha
Maîtrise d'oeuvre : forme cotraitant + fcml architectes mandataire

Localisation : Angers

En études

Surface : 1 400 m²
Budget : 1,9 M€ HT

Situé au nord de la ville d’Angers, l’opération des Kalouguines s’inscrit dans un secteur aux morphologies composites, entre ensembles pavillonnaires de maisons individuelles, emprises d’activité variées, immeubles collectifs ou grands équipements.
Le bâtiment est conçu en structure bois préfabriquée, valorisant l'utilisation de matériaux durables, et permettant également une mise en œuvre rapide lors du chantier.
Le projet se développe en deux volumes distincts posés sur un socle commun. L’un accueille de l'habitat collectif avec 18 logements en R+5, l'autre prend la forme de 4 maisonnées en habitat intermédiaire R+1.
L'implantation de cet ensemble bâti dans son terrain taluté permet un accès de plain-pied des résidents dans leurs maisons côté jardin, et un accès direct aux stationnements depuis la rue.
A l'échelle du piéton, le socle commun est souhaité le plus ouvert possible. Il articule les différents éléments de programme dans une continuité visuelle.
Les plans des logements sont conçus pour répondre à une certaine flexibilité, rendant possible l'appropriation par les futurs habitants de leurs espaces de vie.